お問い合わせ番号:1005
| 交通/所在地 | 価格 | 間取り | 建物面積 | 種別 |
|---|---|---|---|---|
近鉄奈良線/近鉄奈良駅 バス15分 徒歩1分 奈良市神殿町 |
12,000万円 |
延べ 650.14m²/196.67坪 |
収益ビル |
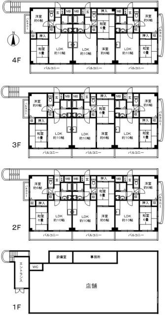
| 土地面積 | 公簿 458.55m²/138.71坪 私道面積: | 建物面積(詳細) | 1F:190.87m² 2F:153.09m² |
建物構造 | 鉄筋コンクリート 地上4階建 |
|---|---|---|---|---|---|
| 築年月 | 平成10年3月 | 間取り | 土地権利 | 所有権 | |
| 建ぺい率/容積率 | 60%/200% | 地目 | 宅地 | 道路/接面 | 公道/m |
| 都市計画 | 市街化 | 接道状況 | 二方 | 用途地域 | 準工 |
| 接道方向(幅員) | 東側/道路:13.5m 南側/道路:6m | 位置指定 | 駐車場 | 有 | |
| 取引形態 | 仲介 | 現況 | 賃貸中 | 引渡 | 相談 |
| 設備など | 電気 上水道 下水道 プロパンガス | ||||
| 周辺施設など | |||||
| 備考 | 利回り:7.60% 年間想定家賃収入:913.08万円 ※総戸数:10戸(住居:9戸、店舗:1戸) ※返還保証金:119万円 |
||||
| 情報更新日 | 2026/04/13 | ||||














