お問い合わせ番号:964
| 交通 | 価格 | 間取り | 専有面積 | 名称 |
|---|---|---|---|---|
近鉄奈良線/新大宮駅 徒歩5分 (その他)JR奈良駅より徒歩18分 奈良市芝辻町四丁目 |
1,470万円 |
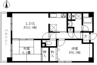
2LDK | 55.01m²/16.64坪 |
プランヴェール奈良新大宮 |
| 建物構造 | 鉄筋コンクリート 地上7階建 | 築年月 | 平成7年10月 | 所在階 | 5階部分 |
|---|---|---|---|---|---|
| 駐車場 | 空無 | 総戸数 | 76戸 | 土地権利 | 所有権 |
| 管理費 | 8,900円(税込) | 修繕積立金 | 21,400円 | 用途地域 | 近商 |
| バルコニー面積 | 9.18m² | バルコニー方向 | 西 | ||
| 取引形態 | 仲介 | 現況 | 空家 | 引渡 | 即時 |
| 設備など | 電気 上水道 下水道 都市ガス 給湯 | ||||
| 周辺施設など | |||||
| 備考 | ※ペット不可 | ||||
| 情報更新日 | 2026/02/13 | ||||






















☆JR奈良駅 徒歩18分
☆2LDK 55.01屐ヽ冑屋住戸
☆佐保川小学校、三笠中学校区域
☆オートロック、宅配BOX有